公開日 2025年10月08日
※画像をクリックすると別ウインドウで表示できます。
外観
内観
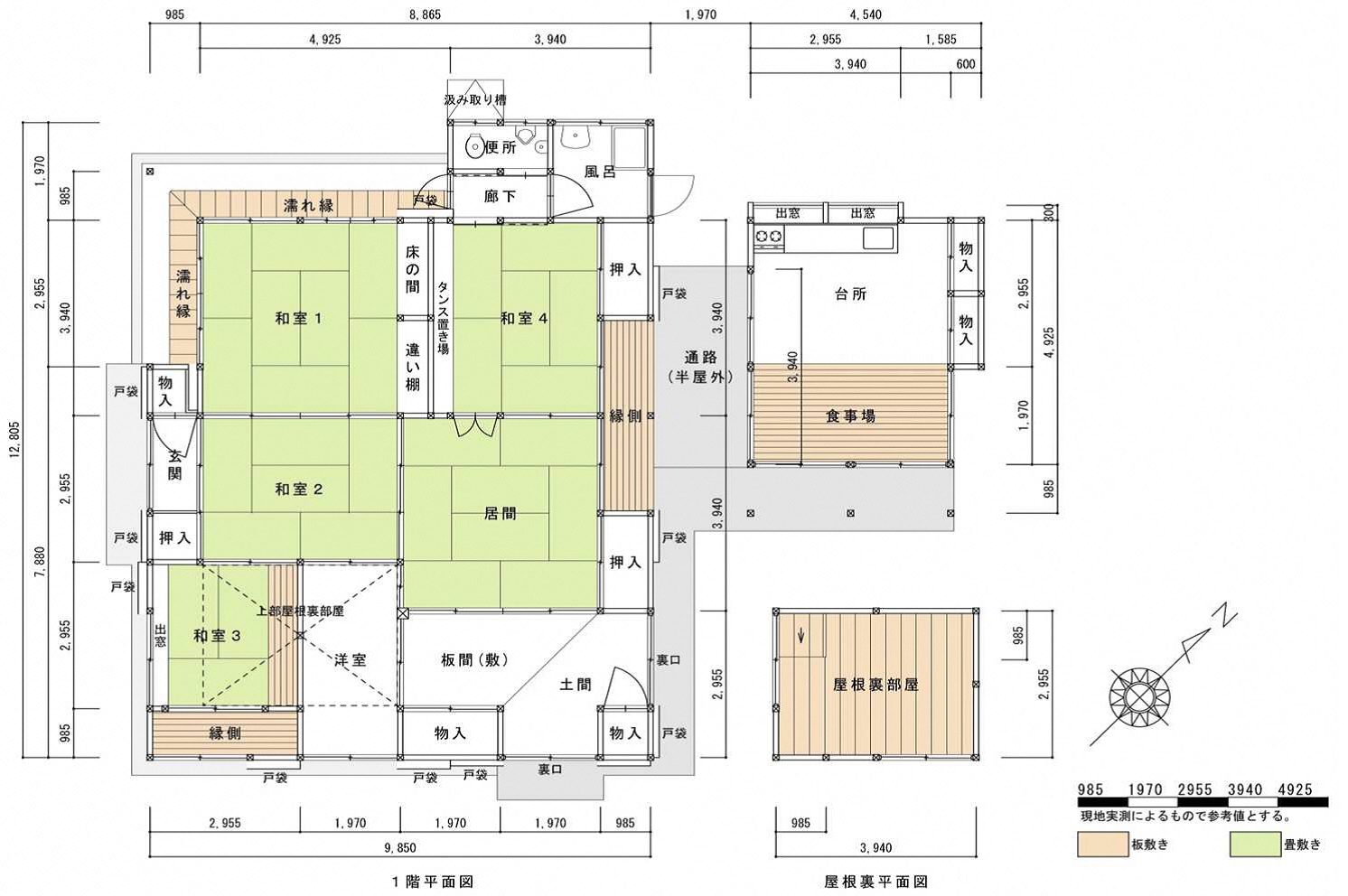
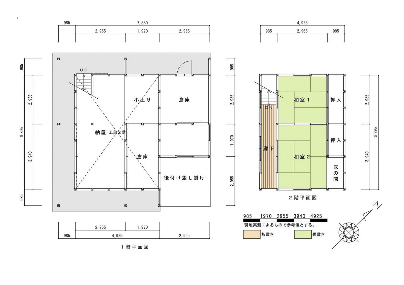
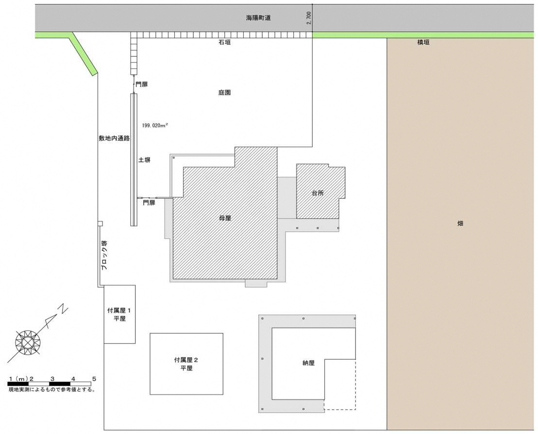
間取り・配置図
【母屋】
【納屋】
【配置図】
周辺環境
| 所在地 | 海陽町大里 |
| 希望価格 | 【賃貸】3万円 【売買】- |
|
建築年・空き家になった時期 |
・明治5年 ・平成30年頃より空き家(令和3年~8年3月:法人と賃貸契約) |
| 建物面積・敷地面積 | 1階 141.4㎡ 2階 11.6㎡ 敷地面積 1,370.4㎡ |
| 構造 | 木造 平屋建(屋根裏部屋あり) |
| 電気 | 引込み済み(6回路) |
| 水道 | 上水道 |
| 給湯 | 電気 |
| ガス | LPガス |
| トイレ | 簡易水洗(くみ取り) |
| 駐車場 | あり |
| 庭 | あり |
| 倉庫 | 木造2階建の納屋あり(1階 57.2㎡ 2階 43.8㎡) |
| 特記事項 |
・建物は古いが本格的な日本建築です。 ・納屋及び畑も賃貸可能です。 注1)元診察室は賃貸の対象外 注2)令和4年に国登録有形文化財 注3)現在賃貸中のため、令和8年4月以降の賃貸物件 |
| 近隣施設等 |
・JR阿波海南駅 0.7km ・町立海南小学校 0.2km ・海南郵便局 0.5km ・大里交番 0.9km ・スーパー(サンシャイン) 0.3km |





