公開日 2025年11月17日
※画像をクリックすると別ウインドウで表示できます。
外観
内観
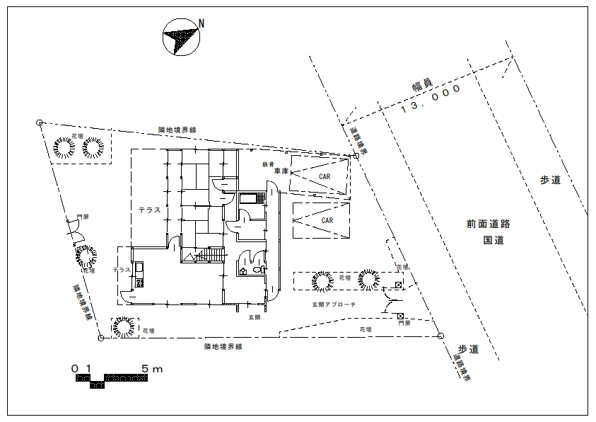
間取り・配置図
平面図
配置図
周辺環境
| 所在地 | 海陽町浅川 |
| 希望価格 | 【賃貸】4万円/月 【売買】500万円 |
|
建築年・空き家になった時期 |
・昭和50年築 ・令和2年頃まで賃貸 |
| 建物面積・敷地面積 | 1階 79.3㎡ 2階 55.9㎡ 敷地面積 318㎡ |
| 構造 | 木造・鉄骨造・鉄筋コンクリート造 2階建 |
| 電気 | 引込み済み(4回路) |
| 水道 | 上水道 |
| 給湯 | 灯油 |
| ガス | LPガス |
| トイレ | 水洗(公共下水) |
| 駐車場 | あり(1台分は車庫) |
| 庭 | あり |
| 倉庫 | あり |
| 特記事項 |
・周辺に建物がなく日当たり良好です。 ・国道に面しており、自家用車やバスの利用に便利です。 ・倉庫兼車庫(24㎡)もあります。 |
| 近隣施設等 |
・JR 浅川駅 1.2km ・町立海南小学校 4.2km ・バス停(徳島バス南部) 0.1km ・スーパー(いせや) 1.2km ・大里交番 4.6km |






